Мы используем "cookies". Продолжая просмотр, Вы принимаете Пользовательское соглашение и Политику обработки персональных данных.

873 объекта недвижимости Якутска

Купить 2-комнатную квартиру за 7 850 000 рублей, 202-й микрорайон, 16

7 850 000 Р

139 680Р за м2 (в у.е.)

110 529 $ | 94 994 €
курсы валют
Бесплатно оцени свою квартиру
  • 56.20 м2

    Общая

  • 11.00 м2

    Кухня

  • 1 из 9

    Этаж

Республика Саха, Городской округ Якутск, Якутск, 202-й микрорайон, 16

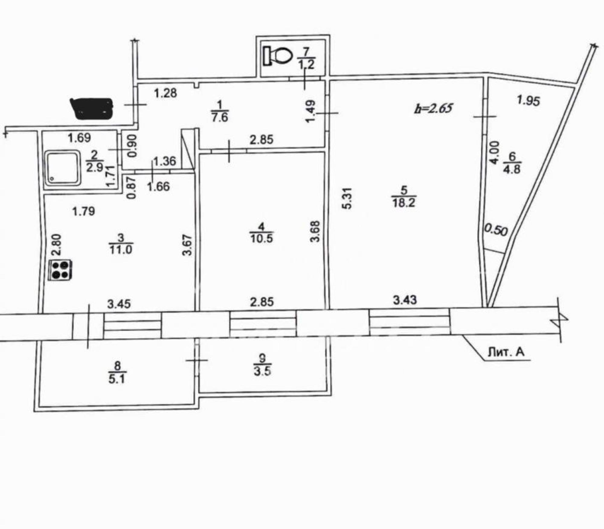
Продаётся уютная 2-комнатная квартира в востребованном районе 202 мкр, корпус 16. Этот дом, построенный в 1997 году по серии 112, предлагает вам идеальное сочетание комфорта и удобства. Площадь квартиры составляет 56.2 кв.м,+ лоджия 8,6 что позволяет с легкостью разместить всю семью. Тихая, уютная, ухоженная, интересная планировка, имеется большая гардеробная (тещина комната), счетчики газа и воды, с кухонной мебелью и бытовой техникой (холодильник и стиральная машина Bosch, газовая плита с электродуховкой Hansa). По периметру пола проходят ... развернуть

Эта квартира
в ипотеку

От 37 652 ₽ в месяц

11 предложений от 7 банков

Рассчитать и получить
одобрение онлайн

Информация по объекту недвижимости, собственниках, обременениях и аресте, выписка ЕГРН.
Перед заказом уточните у продавца по телефону точный адрес до квартиры или кадастровый номер.

Характеристики

  • Количество комнат 2
  • Тип дома панельный
  • Этаж 1
  • Этажей всего 9
  • Наличие телефона да
  • Наличие балкона да
  • Санузел раздельный с/у
  • Площадь кухни 11.00 кв. м

Ипотечный калькулятор

Стоимость недвижимости

Первоначальный взнос

Ставка

Срок

Подберем квартиру в новостройке!

Низкие ставки по ипотеке с ежемесячным платежом ниже аренды похожей квартиры.

График средних цен по продаже двухкомнатных квартир в Якутске

Тип недвижимости Средн. цена м2 Изменение с 10.06.2025 Разброс цен Дата
Квартиры (вторичный рынок) 167 386 руб. + 22 125 руб. 5 200 000 ... 13 288 000 руб. за объект 19.05.26
156 683 руб. + 11 423 руб. 5 000 000 ... 13 200 000 руб. за объект 05.05.26
155 237 руб. + 9 976 руб. 4 000 560 ... 15 296 000 руб. за объект 21.04.26
153 342 руб. + 8 082 руб. 3 950 000 ... 14 000 000 руб. за объект 07.04.26
156 062 руб. + 10 802 руб. 4 500 000 ... 12 800 000 руб. за объект 24.03.26
158 598 руб. + 13 338 руб. 3 500 000 ... 13 500 000 руб. за объект 10.03.26